Texas Tech University

Student Housing & Commons

 

     

Program Studies & Analyses

           

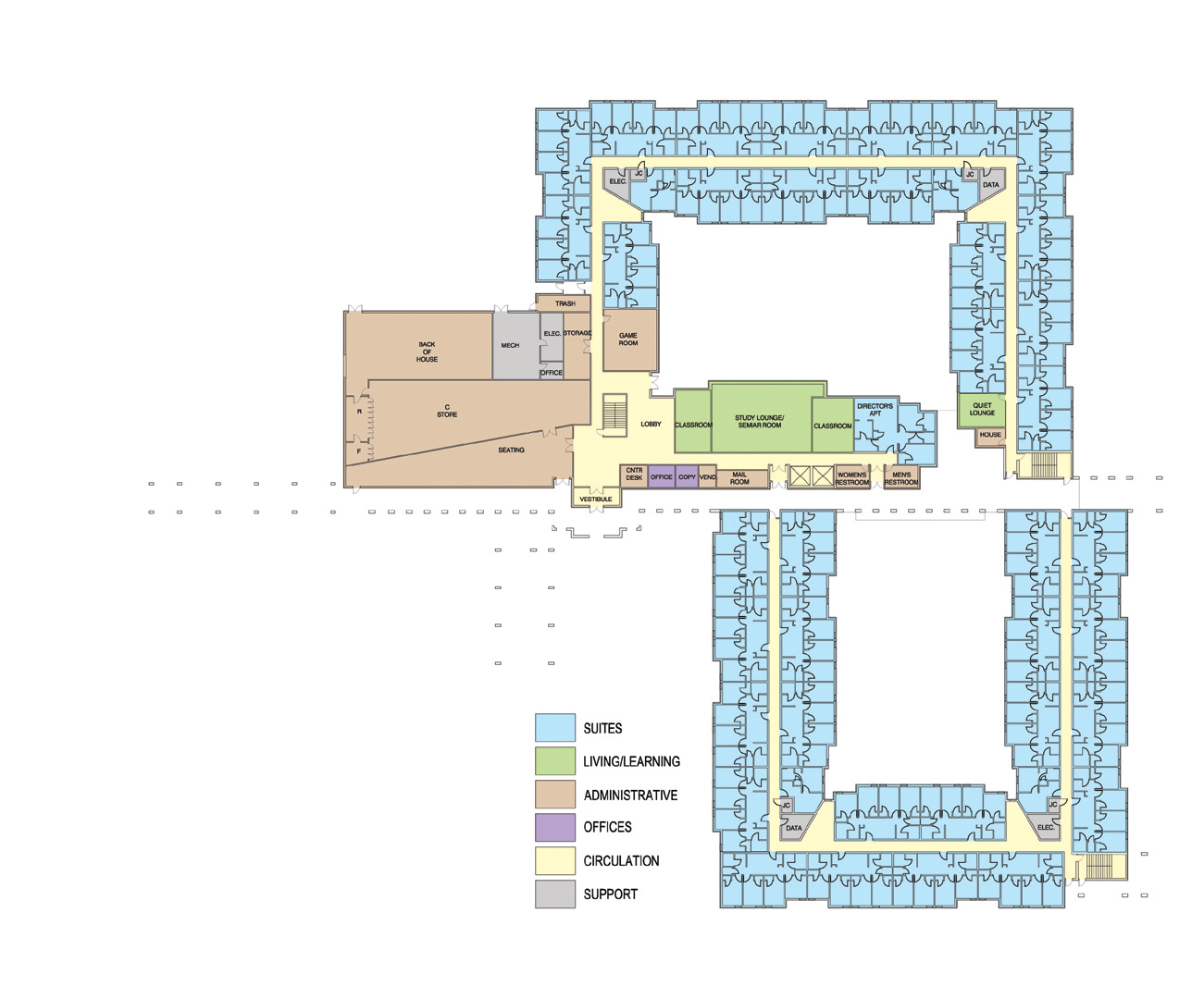
Site, Level & Unit Plans

  

Detailed Elevations by G. Krishan

  

Sketches by G. Krishan

        

Model Aerial Views by David Fugate

Sketch Up/ Photoshop by David Fugate

Model by Charles Brant & Team

 

Lotti Krishan & Short


Last Updated 021504